Akademia Sztuk Pięknych / 2025
Detal elewacji
Idea
Projekt nowego budynku Akademii Sztuk Pięknych w Katowicach czerpie z lokalnego dziedzictwa architektonicznego, wykorzystując charakterystyczną dla Śląska czerwoną cegłę. Użycie cegły rozbiórkowej daje nowe życie materiałowi odzyskanemu podczas rozbiórkek obiektów znajdujących się na działce oraz z innych wyburzeń na terenie Śląska. W najbliższym otoczeniu cegła pojawia się głównie w zdobieniach i w partiach cokołowych budynków, natomiast wyższe kondygnacje zazwyczaj wykończone są tynkiem. Projekt wykorzystuje ten kontekst, tworząc malarską elewację opartą na gradiencie: biała, wklęsła fuga, intensyfikowana ku górze, stopniowo rozlewa się na ceglane lico, tworząc przejście od ciężkiej czerwieni u podstawy do lekkiego, niemal białego zwieńczenia budynku.
Główne założenia urbanistyczne i usytuowanie na działce
Projektowany budynek zamyka pierzeję kwartału rozpoczętą przez budynek Unikato. Położona w narożniku zabytkowa willa – wolno stojący, niskiej skali obiekt – nie pozwala
na pełne domknięcie pierzei. Nowy gmach będzie dla niej tłem podkreślającym jej historyczną wartość. Kolorystycznie stanowi jej odwrotność: ceramiczny dół i jasna tynkowana góra w opozycji do jasnego tynku i ceramicznego dachu willi.
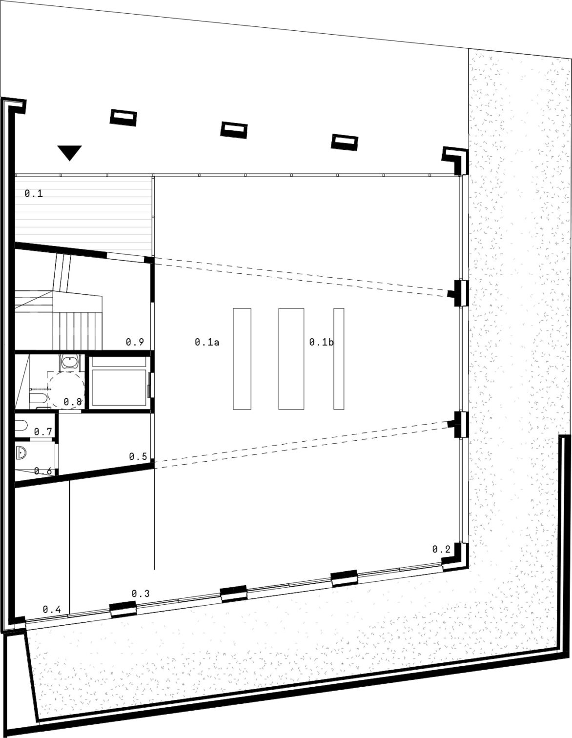
Zielone patio
Ściany istniejących w południowej części działki zabudowań zostaną pozostawione i po wzmocnieniu dodatkową warstwą cegły wykorzystane jako ściany oddzielenia pożarowego. Będą wykończone cegłą i pokryte zimozielonymi pnączami. Pozostawienie zewnętrznych ścian istniejącego obiektu ograniczy uciążliwości związane z budową dla sąsiadujących z nią posesji. Między zachowanymi ścianami a nowym budynkiem zaprojektowano widoczny z przeszklonego parteru wąski intymny ogród tworzący przestrzeń wypoczynku dla studentów. Nastrój ogrodu zwielokrotniony zostanie przez pokrycie ścian zimozielonymi pnączami. Wykonana z czerwonego betonu posadzka parteru przenikać ma z wnętrza na zewnętrzny plac wejściowy. Kolor podstawy optycznie „zasysany” przez dolne partie budynku będzie stopniowo zanikać ku górze.
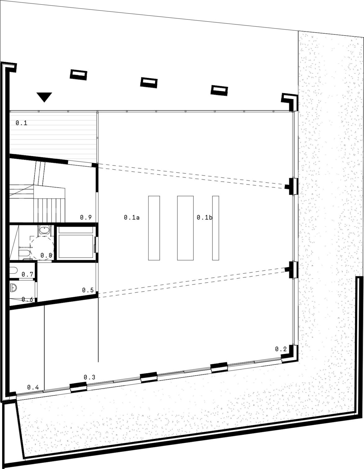
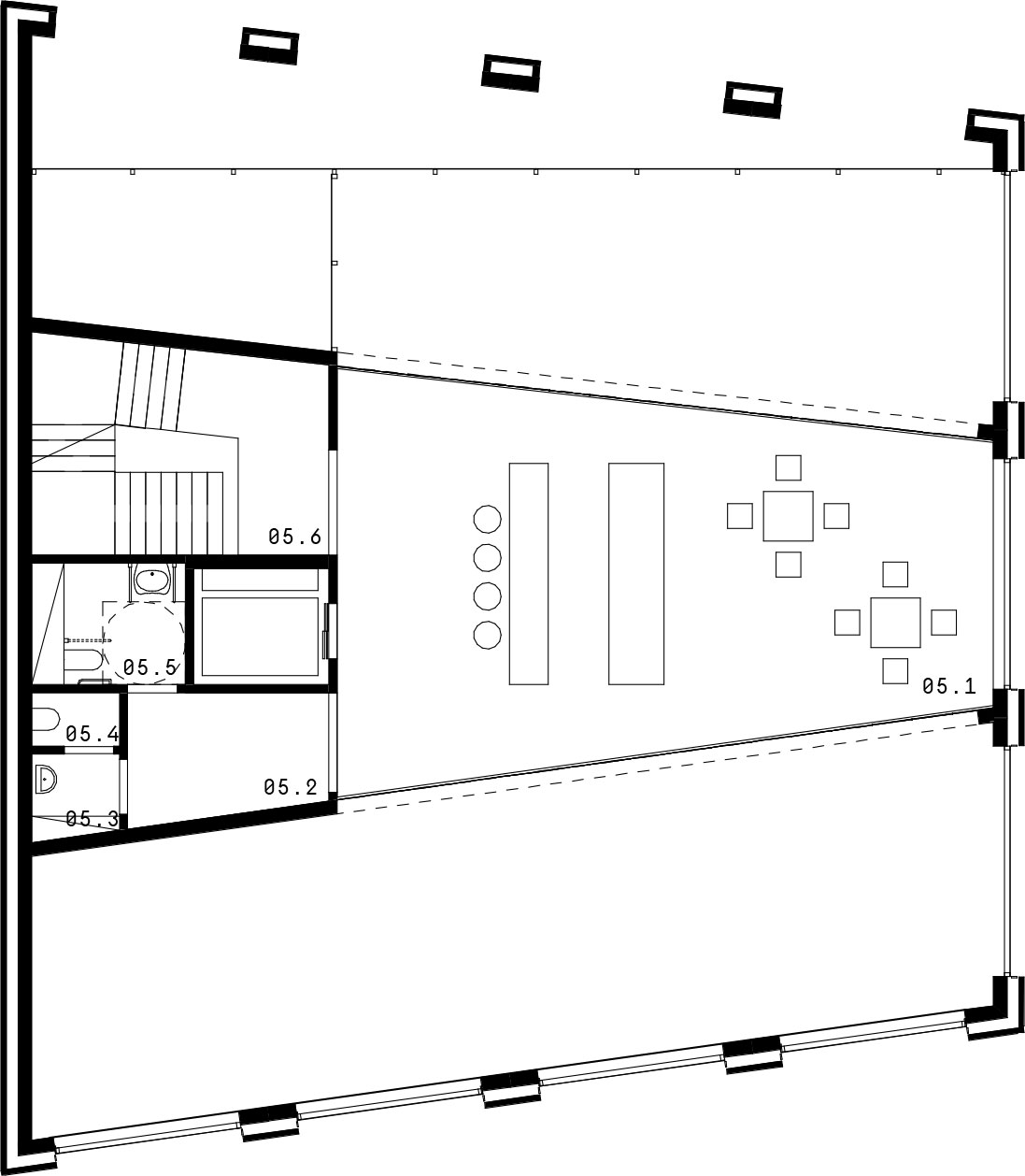
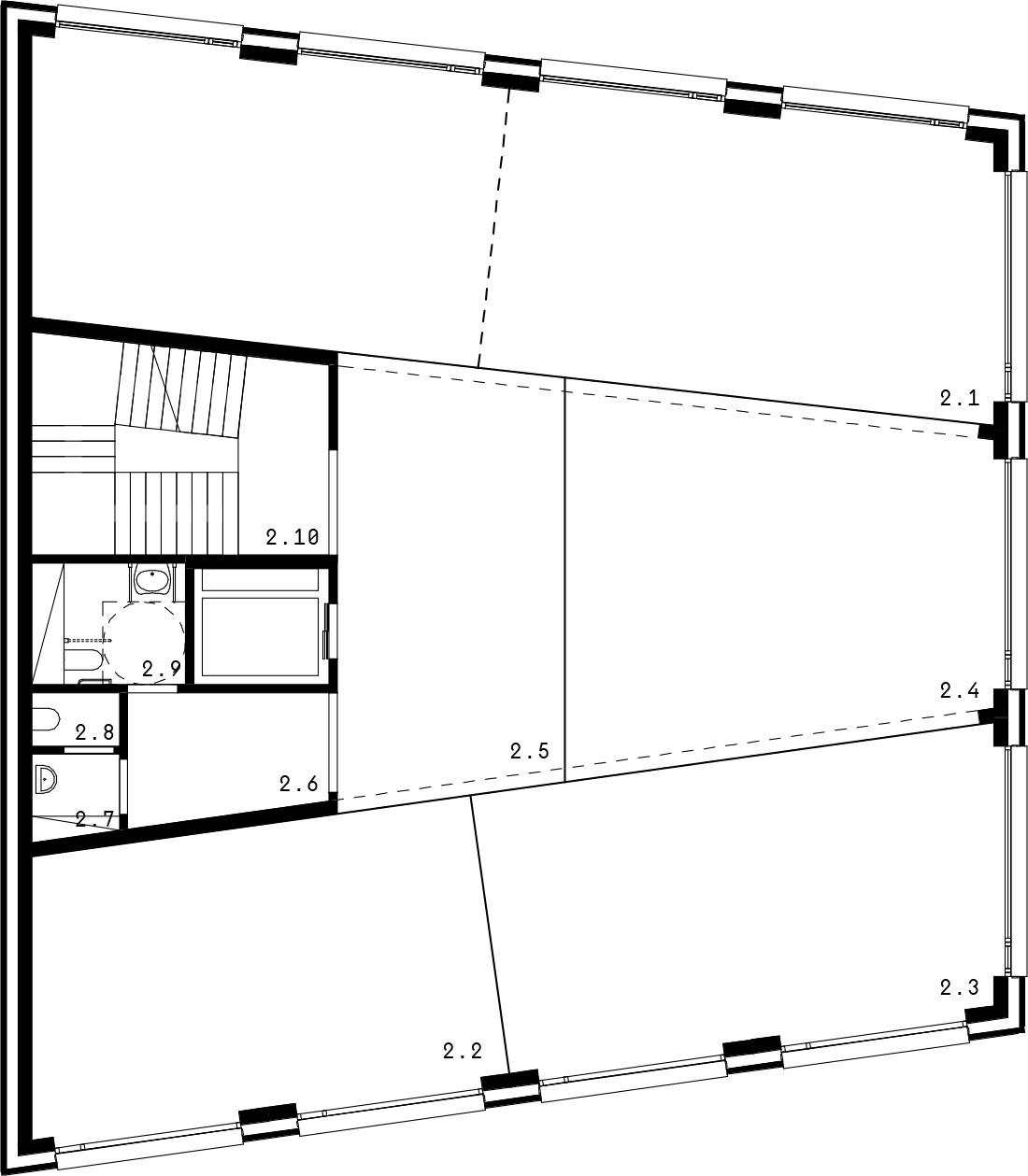
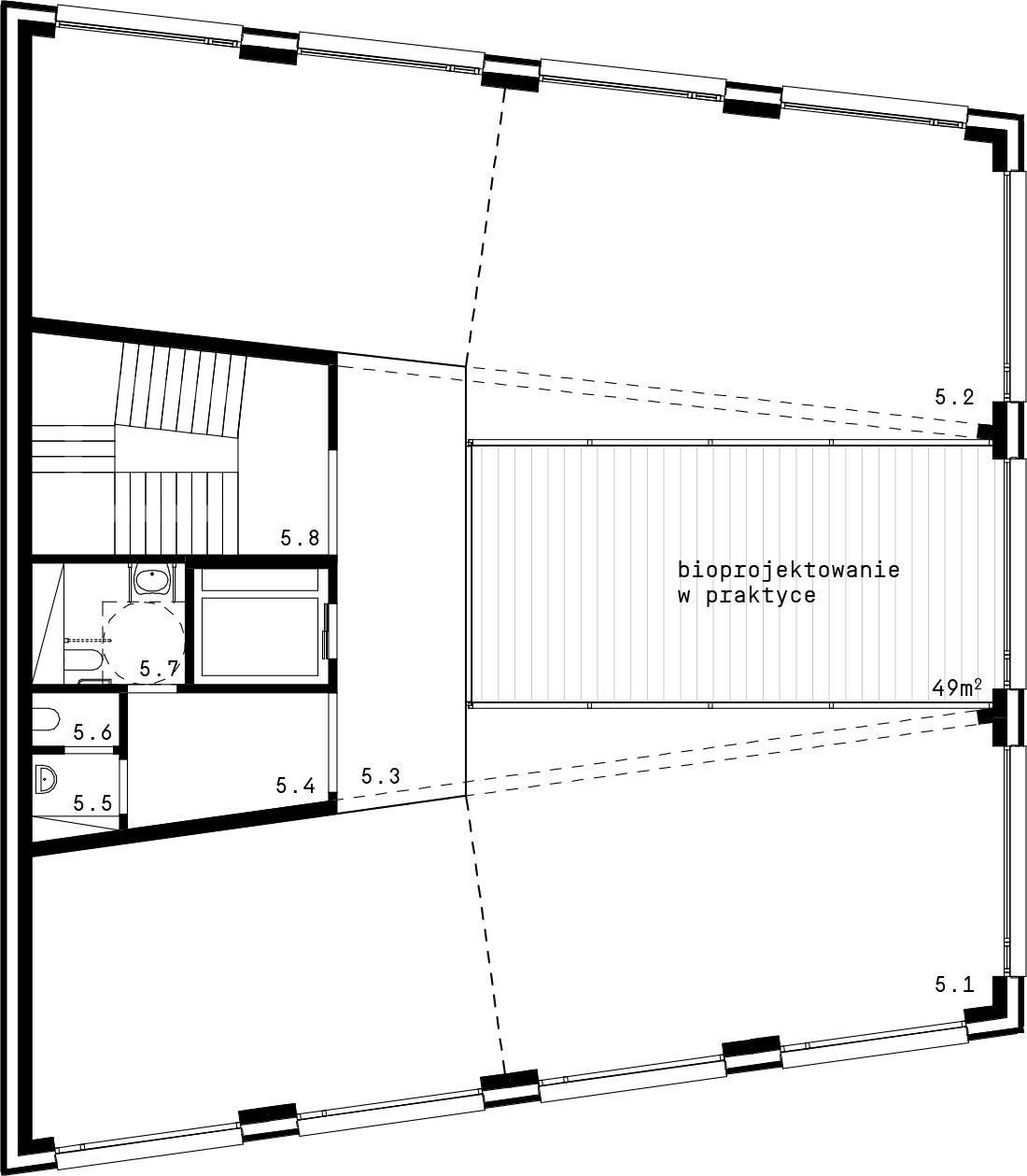
Rozwiązania architektoniczne, konstrukcyjne i materiałowe
Nieregularny kształt działki zabudowanej niemal do granic prawnych wymusza romboidalny obrys rzutu budynku. Zachodnia ściana stojąca na granicy działki przewidziana do przylegania przyszłej zabudowy plombowej pozostaje ślepa. Na pozostałych elewacjach zastosowano regularny rytm otworów: 6 kolumn w 4 rzędach na elewacji północnej i południowej oraz 3 kolumny w 6 rzędach od wschodu. Wysokość parteru jest prawie dwukrotnie większa niż wysokość pozostałych kondygnacji. Część podziemną stanowi dwukondygnacyjna, sztywna skrzynia żelbetowa. Część nadziemna zaprojektowana została w technologii prefabrykowanej z wykorzystaniem sprężonych belek rozpartych pomiędzy ścianami trzonu komunikacyjnego a zewnętrzną ścianą wschodnią . To rozwiązanie pozostawia kondygnacje nadziemne bez jakichkolwiek wewnętrznych podpór i umożliwia dowolną aranżację przestrzeni pięter – od w pełni otwartej do podzielonej na mniejsze pomieszczenia. Ściany zewnętrzne to szkielet żelbetowy pokryty ociepleniem i stolarką, a skórę budynku zaprojektowano z cegły rozbiórkowej z fugą zacieraną coraz intensywniej ku górze.
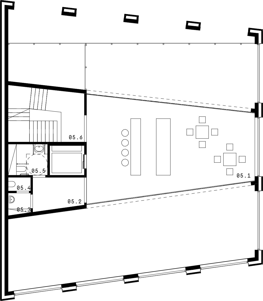
Parter – przestrzeń wspólna
Parter pełni funkcję otwartej, elastycznej strefy spotkań, współpracy i integracji – zarówno formalnej, jak i nieformalnej. Otoczony ogrodem od południa i wschodu, otwiera się ku „starej Akademii” poprzez kontynuację czerwonego betonu posadzki na placu wejściowym.
Wysokość parteru pozwala na wprowadzenie w środkowej nawie budynku antresoli z kuchnią i miejscem spożywania posiłków. Antresola zawieszona jest na cięgnach do belek żelbetowych stanowiących konstrukcję dla stropu parteru. W ten sposób zasada kondygnacji bez wewnętrznych podpór została zachowana również na parterze. Mobilne stoły robocze wykonane mają być z klasycznych desek A0 na koziołkach. W razie potrzeby deski można zamienić w ekrany wystawiennicze. Duże przeszklenia zapewniają bezpośredni kontakt wnętrza z zielenią, ulicą i znajdującą się po przeciwległej stronie ulicy „starą Akademią”.










