Szkoła specjalna na os. Pawlikowskiego / 2019
KONCEPCJA
Koncepcja budynku szkoły powstała z potrzeby poprawy warunków funkcjonowania istniejącej szkoły z oddziałem przedszkolnym, poprawę warunków nauczania oraz dostosowanie szkoły do potrzeb związanych z opieką nad osobami z niepełnosprawnościami.
ZAŁOŻENIE FUNKCJONALNE
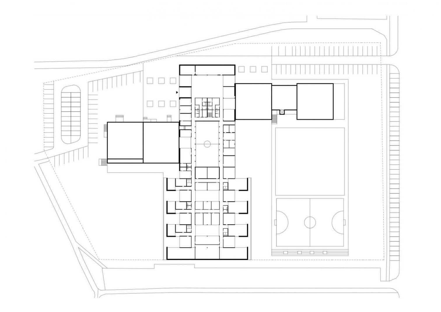
Głównym założeniem było powiększenie przestrzeni o wyspecjalizowane pomieszczenia dydaktyczne i zaplecze pedagogiczne szkoły specjalnej wraz z sala gimnastyczną oraz połączenie nowej funkcji obiektu z budynkami istniejącymi na działce (Przedszkola nr 23 im. L. Krzemienieckiej i Szkoły Specjalnej nr 22), aby umożliwić bezpośredni dostęp wszystkich uczniów do sali gimnastycznej.
PROGRAM
Nowo projektowana przestrzeń będzie jednocześnie miejscem przebywania uczniów z lekką oraz umiarkowaną niepełnosprawnością intelektualną. Możliwość występowania konfliktów między tymi grupami uczniów, związana z ich odmienną niepełnosprawnością, w tym często trudnością porozumienia się między sobą, przyczyniła się do powstania trzech stref funkcjonalnych: sale dydaktyczne dla uczniów z lekkim upośledzeniem psychicznym, sale dydaktyczne dla uczniów z umiarkowanym upośledzeniem psychicznym oraz część współdzieloną, w tym jadalnię, salę gimnastyczną oraz pomieszczenia specjalistyczne, stanowiącą jednocześnie bufor pomiędzy uczniami. Korzystanie z pomieszczeń w strefie środkowej (buforu) odbywa się pod stałą kontrolą opiekunów. Dostęp jest regulowany poprzez zamykanie korytarzy w celu ograniczenia kontaktu uczniów z różnym stopniem upośledzenia.
FILM
Pomysł stworzenia bryły, będącej łącznikiem, pozwolił na bliskie i praktycznie bezpośrednie połączenie obu istniejących budynków, dodatkowo wyposażając przestrzeń pomiędzy nimi w elementy tworzące część wspólną. W dalszej części znajdują się sale dydaktyczne przedzielone atrium, dzięki którym są dobrze doświetlone, co korzystnie wpływa na rozwój uczniów.
ZIELEŃ
Elementy zieleni w formie wewnętrznych dziedzińców oraz zewnętrznych tarasów, dzielą sale dydaktyczne, doświetlają pomieszczenia oraz pełnią funkcję terapeutyczną, tworząc ogrody sensoryczne, dostępne bezpośrednio z sal, wydzielone indywidualnie dla poszczególnych stref.
















