Dom Atrialny / 2017
Działki pod budownictwo jednorodzinne w Polsce są albo za małe, albo za duże.
Marzeniem Polaka jest wolnostojący dom jednorodzinny, tymczasem działki, które na ten cel przeznaczamy są prawie zawsze rażąco za małe. Minimalna powierzchnia działki określana przez MPZP to zazwyczaj 600 m2 czyli przy dobrej proporcji jakieś 20x 30 m. Działka 800m uchodzi za dużą, przy czym szerokość od frontu rzadko przekracza 20m, a co najwyżej głębokość się zwiększa.
Odejmując 2x po 4m na wymaganą przez prawo budowlane odległość ściany z otworami okiennymi od granicy z sąsiadem na sam dom pozostaje najczęściej nie więcej niż 12m szerokości, a i na ogród z tyłu nie ma zbyt wiele miejsca. Piętrowe domy stoją oddalone o 8 m jeden od drugiego i zaglądają sobie do okien. Żeby zapewnić sobie odrobinę prywatności mieszkańcy na granicach stawiają „mury z tui”.
kontekst
Racjonalnie myślący mieszkańcy Holandii albo Wysp Brytyjskich wiedzą, że nawet na mniejszej powierzchni można uzyskać o wiele lepszy użytkowo ogród stosując zabudowę szeregową i pełne mury na granicy z sąsiadem. Nikt nikomu nie zagląda do okien, perspektywa ogrodu jest dość spora, ściany z sąsiadem nie trzeba docieplać, a domy grzeją się nawzajem. Polacy wiedzą lepiej.
Działka w Łaziskach była jak zwykle. 800m2, od wschodu sąsiad 4m od granicy, taras jeszcze bliżej, od zachodu przyszły sąsiad (pewnie taki sam jak od wschodu), od południa stodoła (jeszcze nie zabytkowa). Standard.
Gdzie tu patrzeć? Na drogę i lasek po jej drugiej stronie? Pomijając że wisi tam piękny kabel NN, to droga prowadząca na pobliskie osiedle nie wydaje się dobrym celem do patrzenia.
Animacja
idea
Trzeba patrzeć na samego siebie.
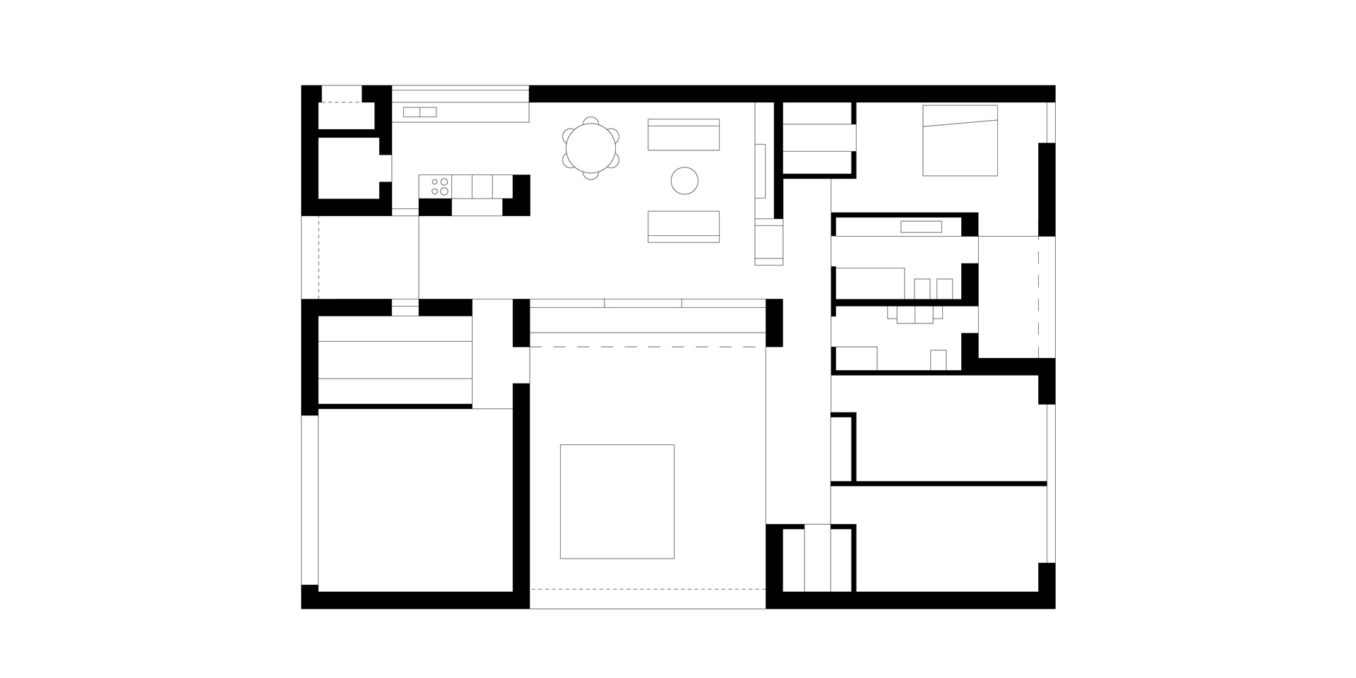
Dom zaprojektowaliśmy jako prostokąt „od dechy do dechy”, ze ślepymi ścianami po bokach. Dzięki temu przy parterowym budynku zachowaliśmy trochę powierzchni z tyłu.
Bryłę sperforowaliśmy trzema atriami. Średnie-wejściowe stanowi śluzę odgradzającą dom od drogi. Duże – środkowe to serce domu, przedłużenie pokoju dziennego, miejsce do którego można się dostać łatwo z każdego pomieszczenia w domu. Wreszcie małe, z widokiem na ogród, całkowicie przynależne do sypialni właścicieli, przeznaczona na poranną kawę w szlafroku lub zwierzenia przyjaciółek. Z widokiem na ogród, bo i ten udało się wygospodarować jednak nie jako przestrzeń użytkową a jedynie obraz do oglądania. Okna wszystkich sypialni zwrócone są w tą stronę i nie mają podziałów co czyni z nich ramy kadrujące widok. Na końcu ogrodu zieleń ma zasłaniać stodołę póki ta sama się nie przewróci. Taka całoroczna fototapeta.
seria "domy wsobne"
Domek jest jednym z serii domów, które powstały w naszej pracowni w ostatnich latach, a które nazywamy „wsobnymi” czyli patrzącymi do swego wnętrza po to, aby dać mieszkańcom minimum intymności na działce zbyt małej na dom wolnostojący.






